2110 Jackson Ave, New Orleans, LA 70113
- 1 bed |
- 1 bath |
- 1,006 sqft
Town Home
Built in 1965
2,178sqft lot
—— car garage
$99/sqft
Listed 1 month ago
Property Description
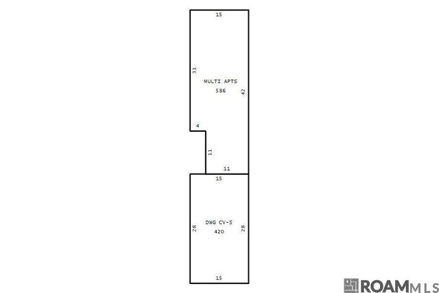
2110 Jackson Ave, Mixed Use Commercial building, formerly a barbershop, offers tremendous potential for investors or entrepreneurs seeking a project in the vibrant Garden District. The property is in need of updates and renovation, making it an ideal opportunity to customize the space to suit various commercial or residential uses. With its original features, including high ceilings and spacious rooms, the building provides a solid foundation for creative transformation. The property's prime location on Jackson Ave puts it within easy reach of local businesses, restaurants, and cultural attractions, offering great visibility and foot traffic for a future commercial venture. Key Features: Former barbershop, suitable for commercial or residential conversion Requires updates and renovation throughout High ceilings and spacious rooms with original details Potential for a wide range of uses, from business to personal residence This property is an excellent investment opportunity for those looking to revitalize a historic space in one of New Orleans’ most desirable neighborhoods.
- Listing Status:
- Active
- Date Added:
- October 1, 2025 at 05:00AM
- Listing Office:
- Homecoin.com : 888-400-2513
- MLS ID:
- 2025018302

- Style: Traditional
- Parking: On Street
- General: Vinyl SidingOther1Other
- HOA Amenities: Annually
- Originating MLS: Greater Baton Rouge Association of REALTORS®
- School District: Orleans Parish
- County: Orleans
- Zoning: SQ 319 PT LOT 25 JACKSON AV 23X95
- Water: Public
- Sewer: Public Sewer
- Source: Greater Baton Rouge Association of REALTORS®
This listing courtesy of Homecoin.com
Monthly Payment
- Principal & Interest $
- Property Taxes $
- Home Insurance $
- VA Funding Fee $
Location
Schools Nearby
Homer A. Plessy Community School
721 Saint Philip St, New Orleans, LA, 70116
Grades PK-8
2.02 miles away
Homer A. Plessy Community School
721 Saint Philip St, New Orleans, LA, 70116
Grades PK-8
2.02 miles away
Rooted School
4238 Saint Charles Ave, New Orleans, LA, 70115
Grades 9-12
1.28 miles away
